LB Optimal 152
- Boarea152.6 m²
- Byggnadsarea102.5 m²
- Antal rum7
- Byggnadshöjd3.6 m
- Taklutning45°
- Nockhöjd7.8 m
- ArkitektIngemar Medlöw - IMw-design AB
LB Optimal 152
Rymligt för den stora familjen
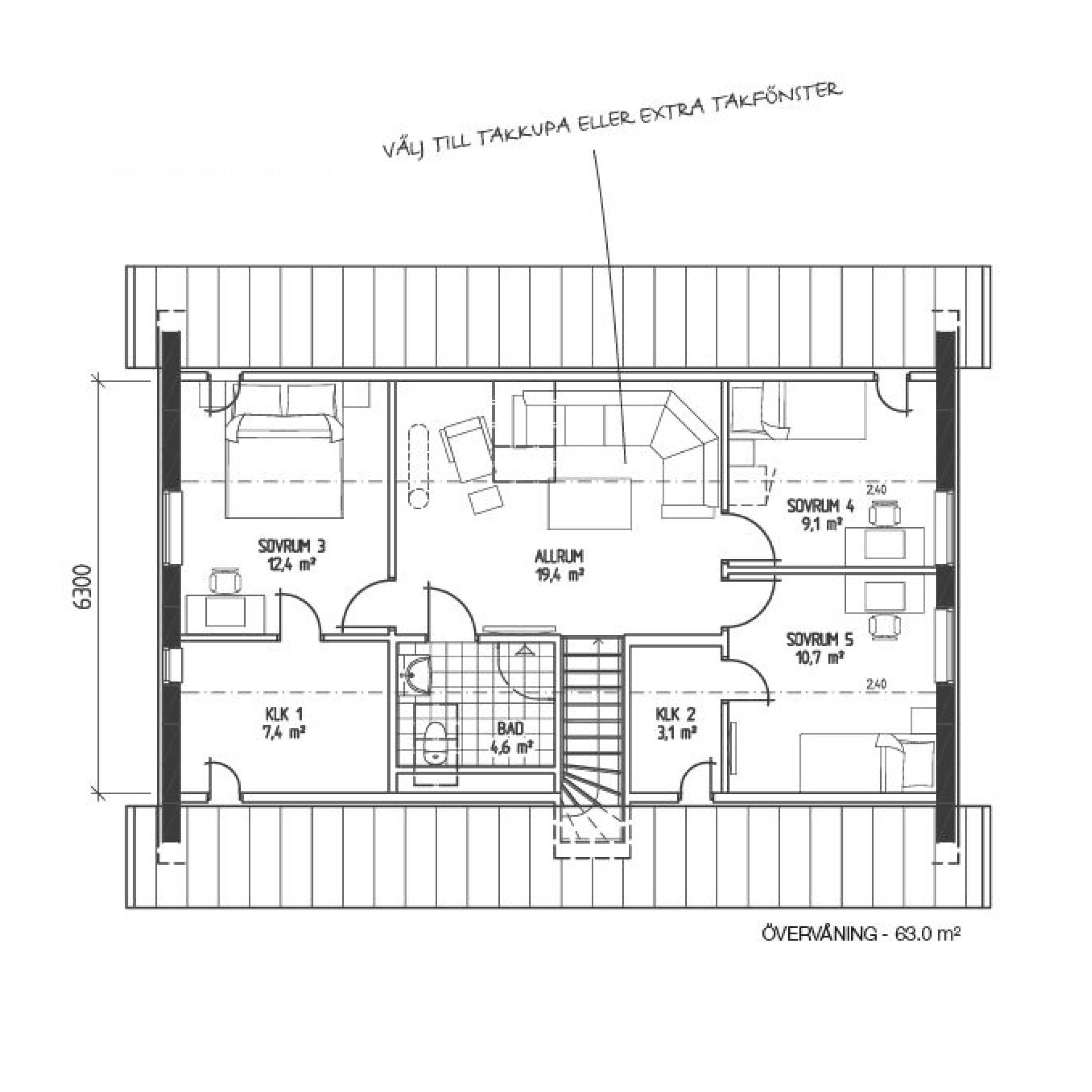
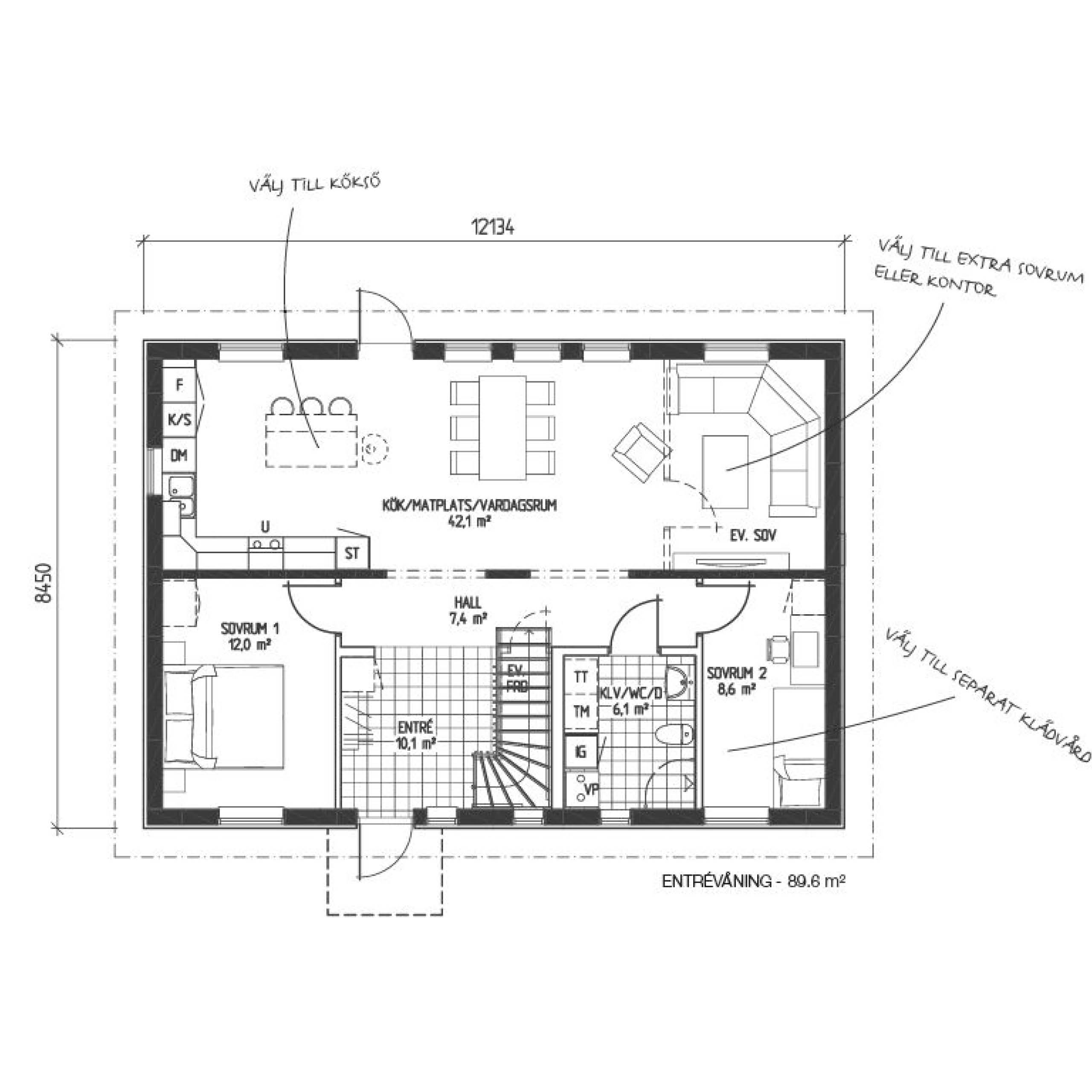
I den generösa entrén till det här tidlösa 1,5-planshuset ryms många att knyta skorna samtidigt. Förvaringsmöjligheterna är allt annat än blygsamma, och kan utökas ytterligare med ett extra förråd under trappan. De öppna sammanvävda sociala ytorna med höga fönster på entréplan bäddar för långa, ljusa helgfrukostar. Ovanvåningen rymmer i sitt standardutförande en mer privat avdelning med tre av de fem sovrummen, klädkammare, badrum och allrum. Du kan också välja att låta övervåningen vara oinredd till en början, och utvidga huset i takt med att behoven ökar. Välj till takkupa eller takfönster för mer ljusinsläpp!
Inredd eller oinredd övervåning?
Valet är ditt. Våra 1,5-planshus går alla att få med både inredd och oinredd övervåning. Väljer du oinredd övervåning kan du välja till olika tillval med förberedelser. Det gör 1,5-planshusen till våra mest flexibla hus. Väljer du oinredd övervåning bygger vi ditt 1,5-planshus med helt oinredd vind, enligt samma princip som ett 1-planshus – men med större taklutning. Kanske nöjer du dig med entrevåningen, men vill ha möjlighet till ett bättre andrahandsvärde i framtiden? Då är det här alternativet perfekt.
Ett hus – två taklösningar
Huset erbjuds även med 38° taklutning (139 m²) och får då fyra sovrum i standard.
Se LB Optimal 139
–
*Priset avser utförande med oinredd övervåning. Huset går även att få med färdig övervåning. Kontakta din säljare för mer information.
Kontakta oss för mer information. Läs mer om totalentreprenad.
Prisgrupp 1 – Priserna varierar beroende på var i landet du bygger ditt hus. Ändra region
Byggsatspris: –
Priset avser standardutförande med vår höga grundstandard på totalentreprenad och inkluderar grundläggning med platta på mark och vattenburen golvvärme samt markarbeten i standardomfattning. Vi förbehåller oss rätten för lokala prisavvikelser med hänsyn till transport- och tillgänglighetssvårigheter, så som vid bl a bro-, tunnel- eller färjeanslutna ögrupper.
Energiförbrukning — kWh/m² per år
- Malmö
- 29
- Göteborg
- 31
- Stockholm
- 34
- Umeå
- 44
Energiberäkningarna är utförda med temperatur 21°C i bostadsutrymmen.
Förutsättningar:
- Värmepump: NIBE S735
- Fönster: Elit Xceed
- Luftläckage: max 0,6 l/s m2
- Marginal enligt TMF: 8.11
Redovisade värden är baserade på standardhus och kan variera beroende på val av byggort, inplacering, ändring av medeltemperatur och/eller ändring i konstruktion på grund av tillval (ryggåstak, fönsterändringar mm.)
Fasadritningar i standardutförande
Roterbar 3D-modell

Intresserad av LB Optimal 152?
Varmt välkommen att kontakta oss om du har några frågor eller önskar få en kostnadsfri offert på ditt drömhus. Fyll i kontaktformuläret nedan:
Kontaktpersoner

Gå på visning
Är du intresserad av att se några av våra hus i verkligheten. Besök någon av våra visningar för att få en känsla för husen vi levererar. Se alla visningar























