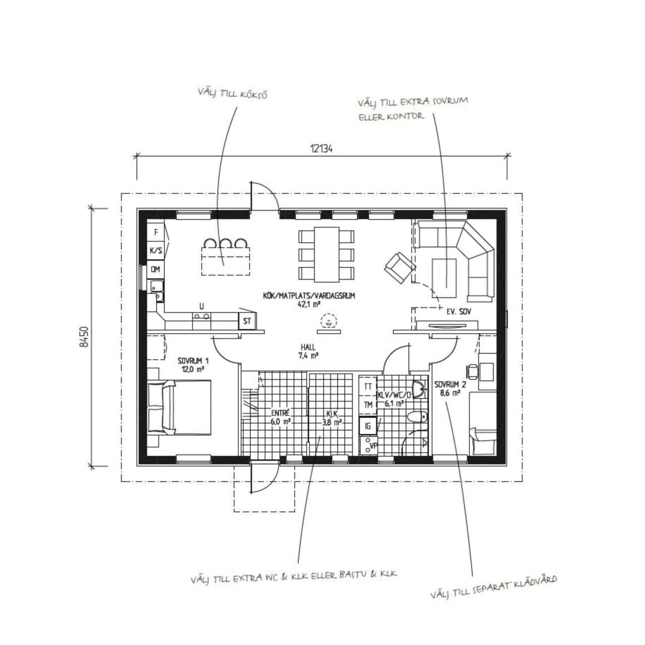
LB Optimal 90
- Boarea89.6 m²
- Byggnadsarea102.5 m²
- Antal rum3
- Byggnadshöjd3.3 m
- Taklutning27°
- Nockhöjd5.4 m
- ArkitektIngemar Medlöw - IMw-design AB
LB Optimal 90
Perfekt för det mindre hushållet
Med sin kompakta och samtidigt öppna boyta passar den här husmodellen utmärkt för det mindre hushållet. Eller varför inte som trevligt sommarboende med villastandard för hela året? Interiören präglas av stora, ljusa sällskapsytor i kök och vardagsrum som länkas samman till en luftig enhet. Du kan också ge plats åt ett extra sovrum för vänner eller utflyttade barn på besök genom att minska vardagsrummets yta något. Har du en förkärlek för praktiska lösningar? Klädkammare direkt i entrén ger dig gott om förvaringsmöjligheter! Bland tillvalen hittar du exempelvis bastu och kopplat garage/carport.
–
Kontakta oss för mer information. Läs mer om totalentreprenad.
Prisgrupp 1 – Priserna varierar beroende på var i landet du bygger ditt hus. Ändra region
Byggsatspris: –
Priset avser standardutförande med vår höga grundstandard på totalentreprenad och inkluderar grundläggning med platta på mark och vattenburen golvvärme samt markarbeten i standardomfattning. Vi förbehåller oss rätten för lokala prisavvikelser med hänsyn till transport- och tillgänglighetssvårigheter, så som vid bl a bro-, tunnel- eller färjeanslutna ögrupper.
Energiförbrukning — kWh/m² per år
- Malmö
- 35
- Göteborg
- 38
- Stockholm
- 42
- Umeå
- 58
Energiberäkningarna är utförda med temperatur 21°C i bostadsutrymmen.
Förutsättningar:
- Värmepump: NIBE S735
- Fönster: Elit Xceed
- Luftläckage: max 0,6 l/s m2
- Marginal enligt TMF: 8.11
Redovisade värden är baserade på standardhus och kan variera beroende på val av byggort, inplacering, ändring av medeltemperatur och/eller ändring i konstruktion på grund av tillval (ryggåstak, fönsterändringar mm.)
Fasadritningar i standardutförande
Roterbar 3D-modell

Intresserad av LB Optimal 90?
Varmt välkommen att kontakta oss om du har några frågor eller önskar få en kostnadsfri offert på ditt drömhus. Fyll i kontaktformuläret nedan:
Kontaktpersoner

Gå på visning
Är du intresserad av att se några av våra hus i verkligheten. Besök någon av våra visningar för att få en känsla för husen vi levererar. Se alla visningar













