LB Optimal 139
- Boarea138.9 m²
- Byggnadsarea102.5 m²
- Antal rum6
- Byggnadshöjd3.5 m
- Taklutning38°
- Nockhöjd6.8 m
- ArkitektIngemar Medlöw - IMw-design AB
LB Optimal 139
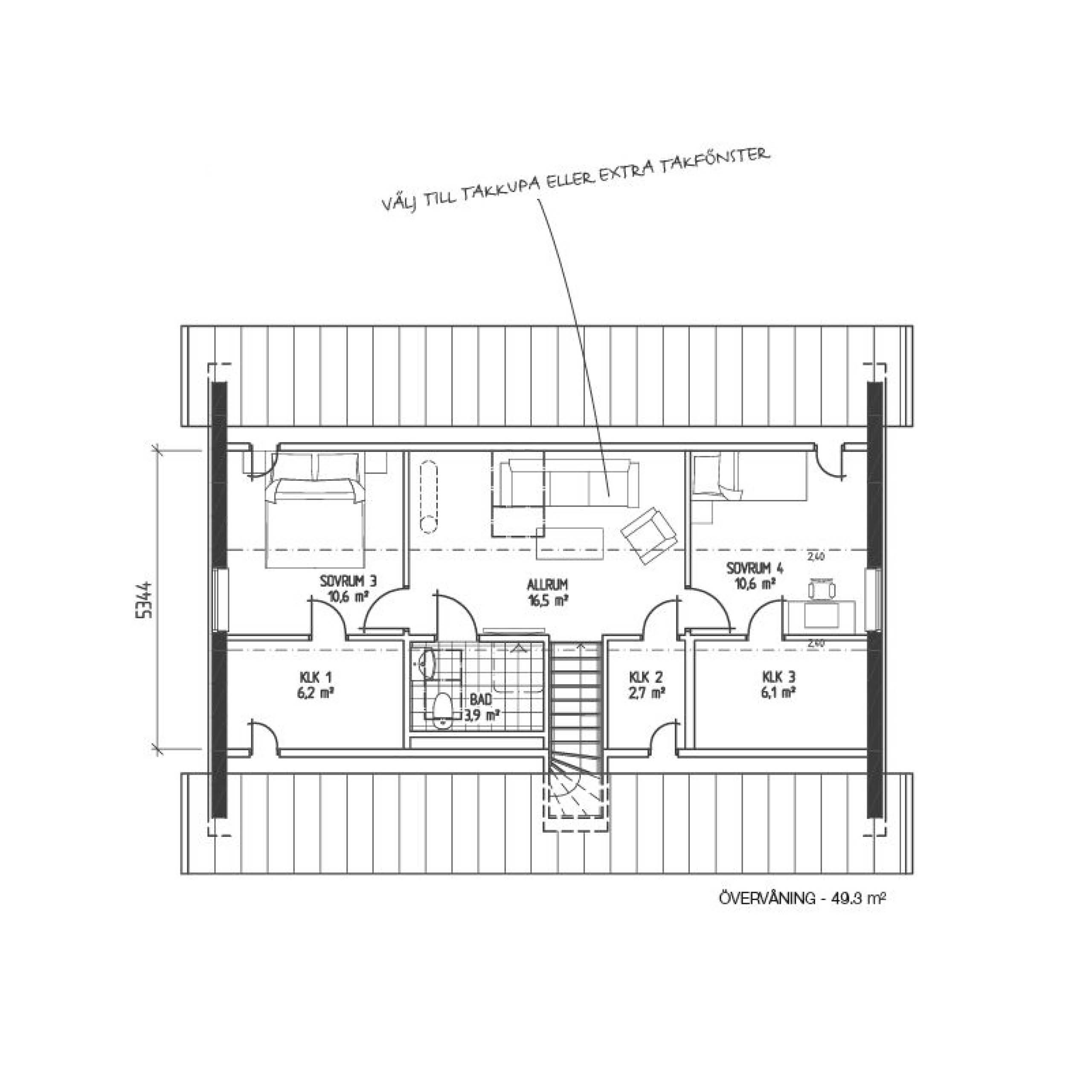
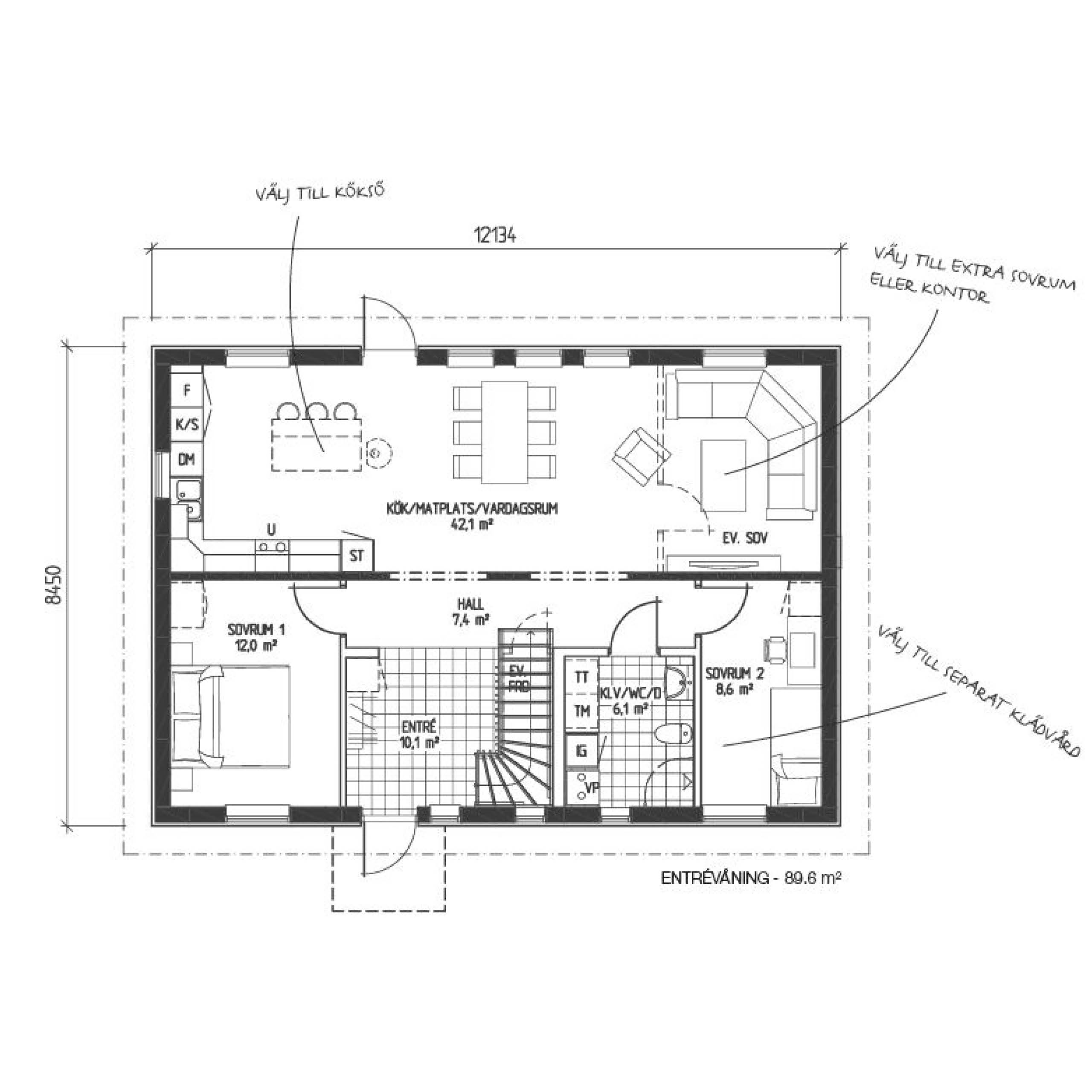
Flexibelt med fyra eller fem sovrum
Den här klassiska husmodellen får vem som helst att känna sig som hemma. Den luftiga, liksom självklara entrén med insyn i den öppna delen av huset välkomnar både familj och vänner, om och om igen. Två sovrum i varsin ände på entréplan ger både närhet och lite avskildhet. På ovanvåningen kan de äldsta barnen få sitt eget utrymme: varsina rum med riktigt ordentliga klädkammare för nyfunna klädintressen eller hemligheter. Kanske är de vuxna välkomna upp på spelkväll i det gemensamma allrummet då och då? Blir ni fler i familjen, eller vill utöka möjligheterna till hemmajobb, går det att bygga till ett extra rum på entréplan.
Inredd eller oinredd övervåning?
Valet är ditt. Våra 1,5-planshus går alla att få med både inredd och oinredd övervåning. Väljer du oinredd övervåning kan du välja till olika tillval med förberedelser. Det gör 1,5-planshusen till våra mest flexibla hus. Väljer du oinredd övervåning bygger vi ditt 1,5-planshus med helt oinredd vind, enligt samma princip som ett 1-planshus – men med större taklutning. Kanske nöjer du dig med entrevåningen, men vill ha möjlighet till ett bättre andrahandsvärde i framtiden? Då är det här alternativet perfekt.
Virtuell visning av isolerad övervåning – se här
Virtuell visning av oinredd övervåning – se här
Ett hus – två taklösningar
Huset erbjuds även med 45° taklutning (152 m²) och kan då fås upp till sex sovrum.
Se LB Optimal 152
–
*Priset avser utförande med oinredd övervåning. Huset går även att få med färdig övervåning. Kontakta din säljare för mer information.
Kontakta oss för mer information. Läs mer om totalentreprenad.
Prisgrupp 1 – Priserna varierar beroende på var i landet du bygger ditt hus. Ändra region
Byggsatspris: –
Priset avser standardutförande med vår höga grundstandard på totalentreprenad och inkluderar grundläggning med platta på mark och vattenburen golvvärme samt markarbeten i standardomfattning. Vi förbehåller oss rätten för lokala prisavvikelser med hänsyn till transport- och tillgänglighetssvårigheter, så som vid bl a bro-, tunnel- eller färjeanslutna ögrupper.
Energiförbrukning — kWh/m² per år
- Malmö
- 30
- Göteborg
- 32
- Stockholm
- 35
- Umeå
- 45
Energiberäkningarna är utförda med temperatur 21°C i bostadsutrymmen.
Förutsättningar:
- Värmepump: NIBE S735
- Fönster: Elit Xceed
- Luftläckage: max 0,6 l/s m2
- Marginal enligt TMF: 8.11
Redovisade värden är baserade på standardhus och kan variera beroende på val av byggort, inplacering, ändring av medeltemperatur och/eller ändring i konstruktion på grund av tillval (ryggåstak, fönsterändringar mm.)
Fasadritningar i standardutförande
Roterbar 3D-modell

Intresserad av LB Optimal 139?
Varmt välkommen att kontakta oss om du har några frågor eller önskar få en kostnadsfri offert på ditt drömhus. Fyll i kontaktformuläret nedan:
Kontaktpersoner

Gå på visning
Är du intresserad av att se några av våra hus i verkligheten. Besök någon av våra visningar för att få en känsla för husen vi levererar. Se alla visningar














