LB Optimal 117
- Boarea116.6 m²
- Byggnadsarea131.5 m²
- Antal rum4
- Byggnadshöjd3.3 m
- Taklutning27°
- Nockhöjd5.6 m
- ArkitektFilip Behr
LB Optimal 117
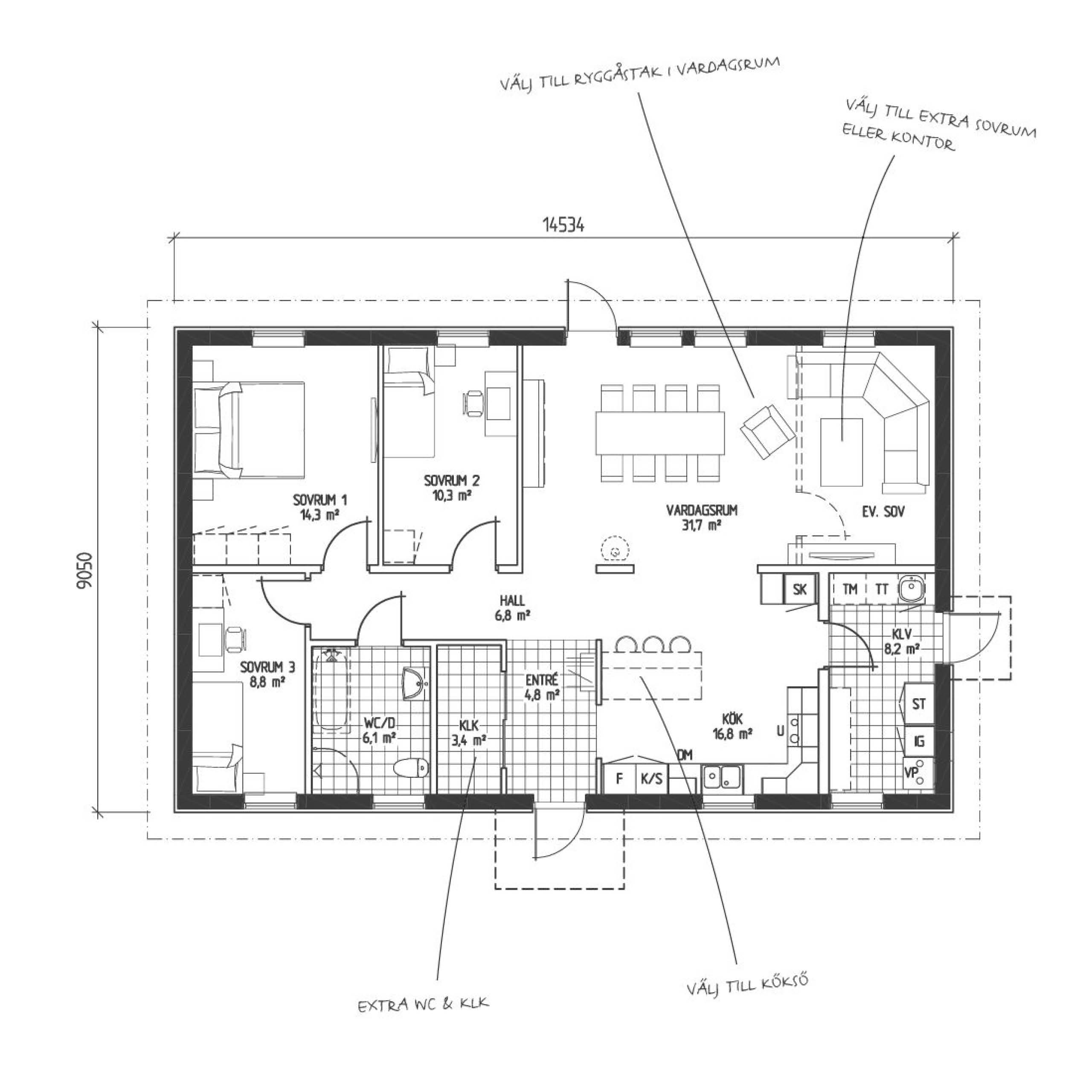
Klassiskt och yteffektivt
Genomsikt och generöst ljusinsläpp utmärker den här klassiska husmodellen, som i sin tidlöshet passar för alla slags tomter och miljöer. Den optimerade boytan med tre till fyra sovrum, smarta förvaringsutrymmen och stor klädvård med egen entré gör sig perfekt för det mellanstora hushållet. Här har ni allt som behövs på ett och samma plan, och alltid en närhet till varandra. Den öppna planlösningen skapar ett trivsamt och luftigt samspel mellan kök och vardagsrum, och för den som önskar ytterligare höjd finns ryggåstak som tillval. Huset lämpar sig också som sommarstuga med en standard som håller året runt.
–
Kontakta oss för mer information. Läs mer om totalentreprenad.
Prisgrupp 1 – Priserna varierar beroende på var i landet du bygger ditt hus. Ändra region
Byggsatspris: –
Priset avser standardutförande med vår höga grundstandard på totalentreprenad och inkluderar grundläggning med platta på mark och vattenburen golvvärme samt markarbeten i standardomfattning. Vi förbehåller oss rätten för lokala prisavvikelser med hänsyn till transport- och tillgänglighetssvårigheter, så som vid bl a bro-, tunnel- eller färjeanslutna ögrupper.
Energiförbrukning — kWh/m² per år
- Malmö
- 31
- Göteborg
- 33
- Stockholm
- 37
- Umeå
- 52
Energiberäkningarna är utförda med temperatur 21°C i bostadsutrymmen.
Förutsättningar:
- Värmepump: NIBE S735
- Fönster: Elit Xceed
- Luftläckage: max 0,6 l/s m2
- Marginal enligt TMF: 8.11
Redovisade värden är baserade på standardhus och kan variera beroende på val av byggort, inplacering, ändring av medeltemperatur och/eller ändring i konstruktion på grund av tillval (ryggåstak, fönsterändringar mm.)
Fasadritningar i standardutförande
Roterbar 3D-modell

Intresserad av LB Optimal 117?
Varmt välkommen att kontakta oss om du har några frågor eller önskar få en kostnadsfri offert på ditt drömhus. Fyll i kontaktformuläret nedan:
Kontaktpersoner

Gå på visning
Är du intresserad av att se några av våra hus i verkligheten. Besök någon av våra visningar för att få en känsla för husen vi levererar. Se alla visningar




















