LB Start 126
- Boarea126.6 m²
- Byggnadsarea141.1 m²
- Antal rum5-6
- Byggnadshöjd3.5 m
- Taklutning27°
- Nockhöjd5.6 m
- ArkitektFilip Behr
LB Start 126
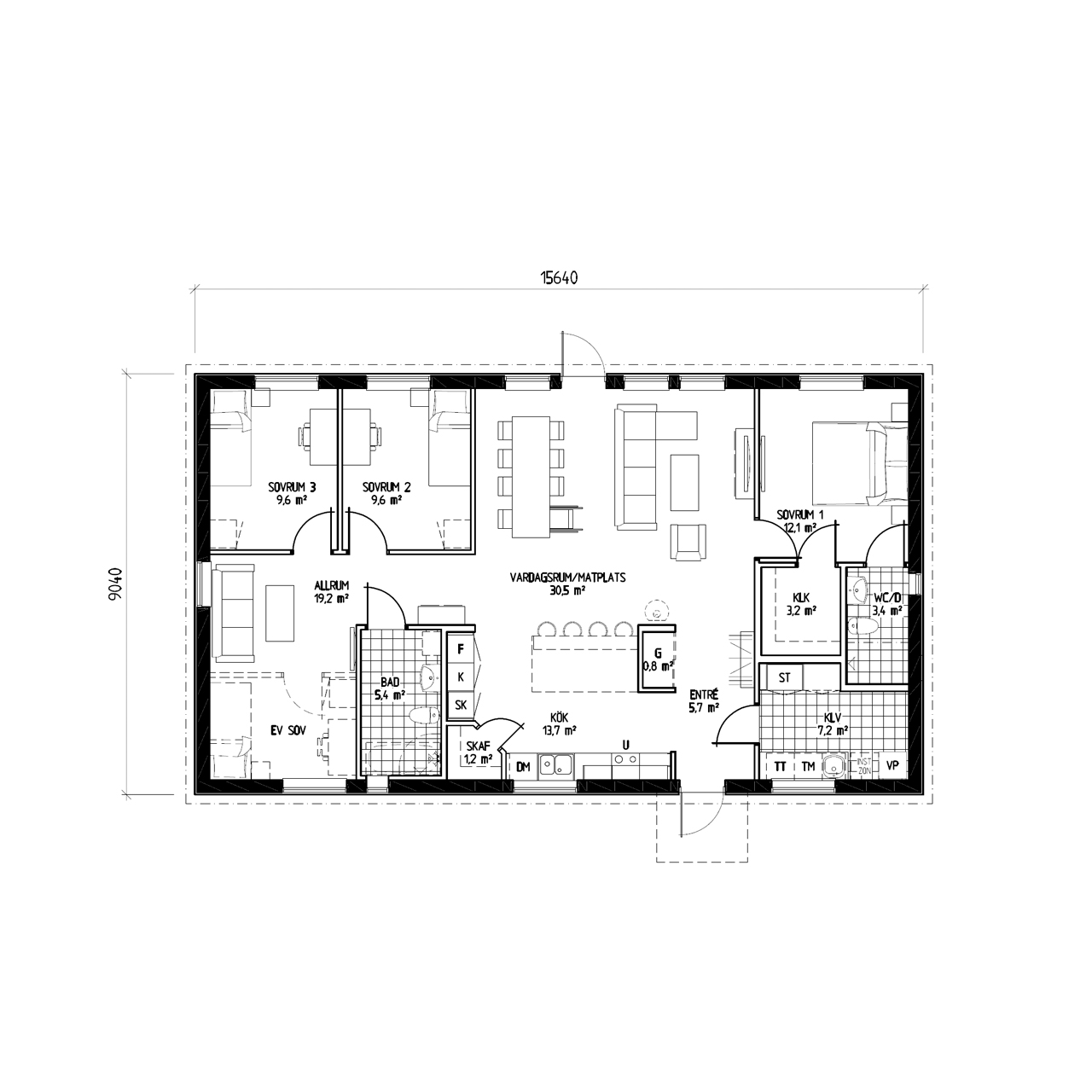
Modernt och yteffektivt
Start 126 är det moderna och yteffektiva huset som passar såväl till permanentboende som till fritidshus. Här erbjuds en optimerad planlösning med möjlighet till fyra sovrum och ett extra allrum som kan användas som TV-rum för barnen, läshörna eller hemmakontor – era behov skapar möjligheterna.
–
Kontakta oss för mer information. Läs mer om totalentreprenad.
Prisgrupp 1 – Priserna varierar beroende på var i landet du bygger ditt hus. Ändra region
Byggsatspris: –
Priset avser standardutförande med vår höga grundstandard på totalentreprenad och inkluderar grundläggning med platta på mark och vattenburen golvvärme samt markarbeten i standardomfattning. Vi förbehåller oss rätten för lokala prisavvikelser med hänsyn till transport- och tillgänglighetssvårigheter, så som vid bl a bro-, tunnel- eller färjeanslutna ögrupper.
Månadskostnad fr. 9 976 kr
Räkneexemplet bygger på:
– Köpeskilling för tomt 1 000 000 kr (inkl ej tillkommande markarbete)
– Start 126 från 2 736 100 kr
– Anslutningsavgifter och byggherrekostnader 200 000 kr
– Kontantinsats på 15%
– Driftskostnad 3000 kr
– Amortering 0 kr i 5 år genom Nordea
– Fastighetsavgift 0 kr i fastighetsavgift i 15år
I vårt räkneexempel har vi räknat på en ränta om 3,49 %, 5 års ränta på Nordea inkl rabatt.
Energiförbrukning — kWh/m² per år
Energiberäkningarna är utförda med temperatur 21°C i bostadsutrymmen.
Förutsättningar:
- Värmepump: NIBE S735
- Fönster: Elit Xceed
- Luftläckage: max 0,6 l/s m2
- Marginal enligt TMF: 8.11
Redovisade värden är baserade på standardhus och kan variera beroende på val av byggort, inplacering, ändring av medeltemperatur och/eller ändring i konstruktion på grund av tillval (ryggåstak, fönsterändringar mm.)
Fasadritningar i standardutförande
Roterbar 3D-modell

Intresserad av LB Start 126?
Varmt välkommen att kontakta oss om du har några frågor eller önskar få en kostnadsfri offert på ditt drömhus. Fyll i kontaktformuläret nedan:
Kontaktpersoner

Gå på visning
Är du intresserad av att se några av våra hus i verkligheten. Besök någon av våra visningar för att få en känsla för husen vi levererar. Se alla visningar














