LB Optimal 185
- Boarea184.6 m²
- Byggnadsarea131.5 m²
- Antal rum8
- Byggnadshöjd3.5 m
- Taklutning38°
- Nockhöjd7.1 m
- ArkitektFilip Behr
LB Optimal 185
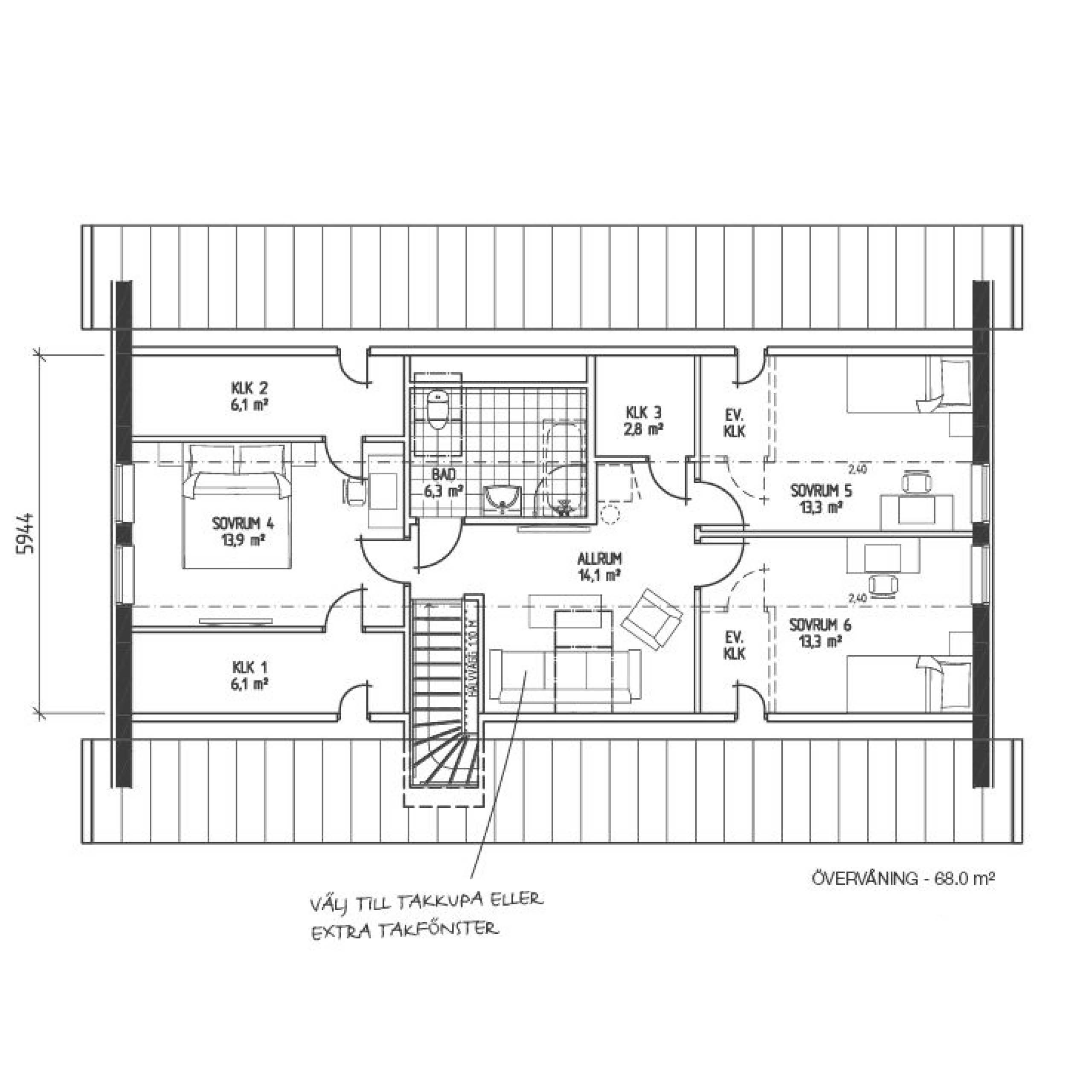
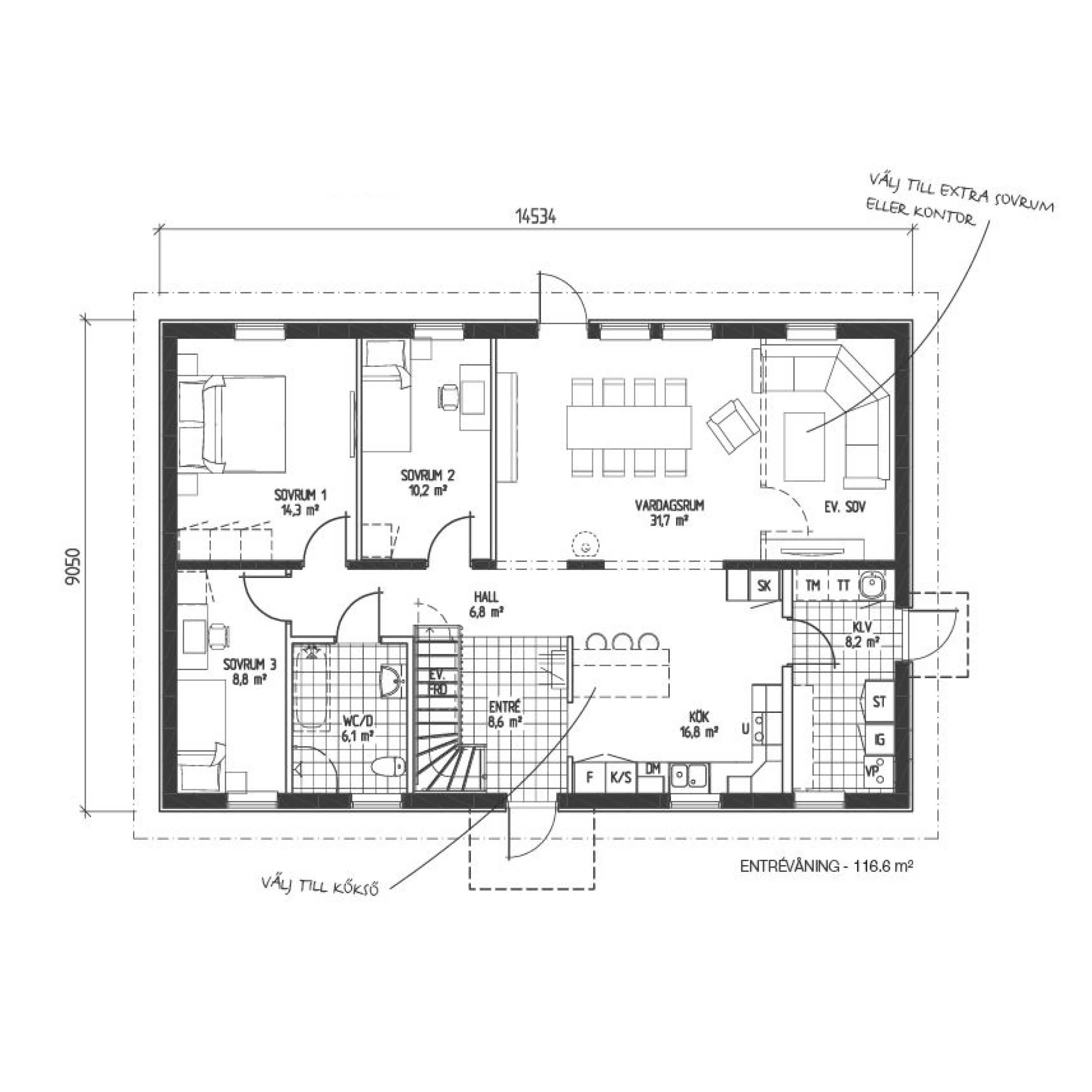
Klassiskt med många rum
Det här rymliga huset är stilrent utformat med klassisk fasad och sadeltak. Interiören präglas av ljuslinjer, genomsikt och en välgenomtänkt plan som gör det mesta möjligt. Drömmer du om eget bibliotek? Extra lekrum till barnen? Väntar ni en till i familjen, eller kanske övernattningssugna gäster? Med sex rum som standard, och möjlighet att utöka till sju, finns gott om utrymme att följa dina husdrömmar. På entréplan finns ordentliga sociala ytor för maximalt familjehäng. Välj till braskamin för att förhöja det traditionella myset ännu mer. Du kan också räkna med gott om plats att stuva undan kläder och prylar med möjligheten till klädkammare i anslutning till alla sovrum på plan två, och klädvård med egen ingång.
Inredd eller oinredd övervåning?
Valet är ditt. Våra 1,5-planshus går alla att få med både inredd och oinredd övervåning. Väljer du oinredd övervåning kan du välja till olika tillval med förberedelser. Det gör 1,5-planshusen till våra mest flexibla hus. Väljer du oinredd övervåning bygger vi ditt 1,5-planshus med helt oinredd vind, enligt samma princip som ett 1-planshus – men med större taklutning. Kanske nöjer du dig med entrevåningen, men vill ha möjlighet till ett bättre andrahandsvärde i framtiden? Då är det här alternativet perfekt.
–
*Priset avser utförande med oinredd övervåning. Huset går även att få med färdig övervåning. Kontakta din säljare för mer information.
Kontakta oss för mer information. Läs mer om totalentreprenad.
Prisgrupp 1 – Priserna varierar beroende på var i landet du bygger ditt hus. Ändra region
Byggsatspris: –
Priset avser standardutförande med vår höga grundstandard på totalentreprenad och inkluderar grundläggning med platta på mark och vattenburen golvvärme samt markarbeten i standardomfattning. Vi förbehåller oss rätten för lokala prisavvikelser med hänsyn till transport- och tillgänglighetssvårigheter, så som vid bl a bro-, tunnel- eller färjeanslutna ögrupper.
Energiförbrukning — kWh/m² per år
- Malmö
- 27
- Göteborg
- 28
- Stockholm
- 31
- Umeå
- 40
Energiberäkningarna är utförda med temperatur 21°C i bostadsutrymmen.
Förutsättningar:
- Värmepump: NIBE S735
- Fönster: Elit Xceed
- Luftläckage: max 0,6 l/s m2
- Marginal enligt TMF: 8.11
Redovisade värden är baserade på standardhus och kan variera beroende på val av byggort, inplacering, ändring av medeltemperatur och/eller ändring i konstruktion på grund av tillval (ryggåstak, fönsterändringar mm.)
Fasadritningar i standardutförande
Roterbar 3D-modell

Intresserad av LB Optimal 185?
Varmt välkommen att kontakta oss om du har några frågor eller önskar få en kostnadsfri offert på ditt drömhus. Fyll i kontaktformuläret nedan:
Kontaktpersoner

Gå på visning
Är du intresserad av att se några av våra hus i verkligheten. Besök någon av våra visningar för att få en känsla för husen vi levererar. Se alla visningar
















