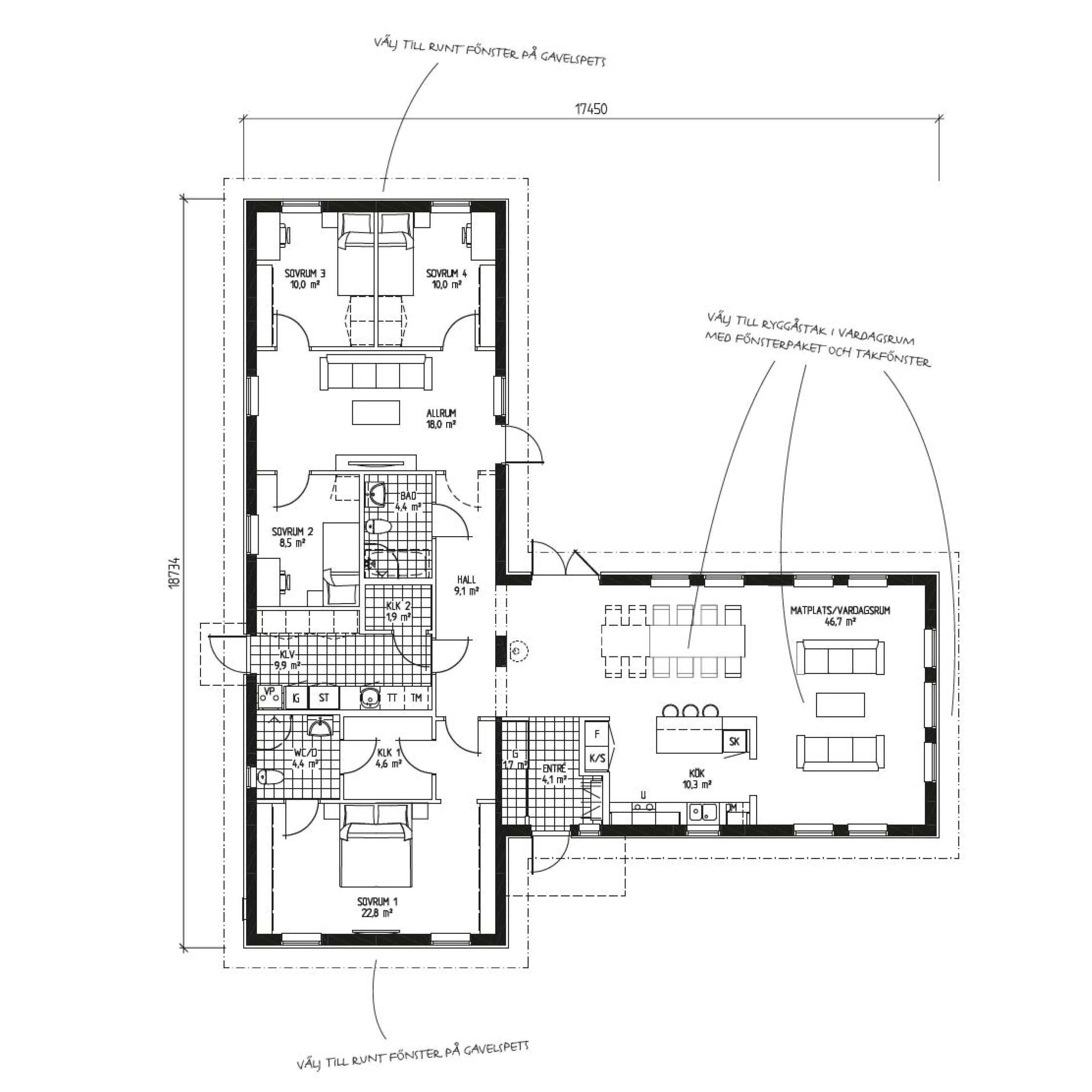
LB Optimal 173
- Boarea173.3 m²
- Byggnadsarea196.4 m²
- Antal rum6
- Byggnadshöjd3.6 m
- Taklutning45°
- Nockhöjd6.9 m
- ArkitektFilip Behr
LB Optimal 173
Perfekt för vardag, fest och mittemellan
Det här är huset med stort ”H” för dig som vill ha gott om plats för både fester och vardagsliv. Med stort master bedroom med egen wc/dusch och klädkammare, separat barndel med eget allrum, rejäl yta för vardagsrum/matplats och massor med förvaringsmöjligheter i klädvårdsdelen, är så gott som hela önskelistan avklarad. Husets sällskapsytor badar i ljus tack vare generösa fönsterpartier och såväl kök som vardagsrum har kontakt med både framsidan och den vindskyddade baksidan. Bland tillvalen hittar du ryggåstak i vardagsrum med fönsterpaket och takfönster.
Digital husvisning LB Optimal 173
Årets vinkelhus 2022 – LB Optimal 173!
Vi är stolta över att ha blivit utnämnda till årets vinkelhus av tidningsmagasinet ”Allt om villor & hus”.
Juryn motivering:
”LB-Hus har lyckats skapa ett vinkelhus med underbara sällskapsytor och ljusinsläpp. Här finns gott om utrymme både inne och ute”
Den som vill läsa hela artikeln kan göra det på sidan 86 i Allt om Villor & Hus 74 | Lifestyle World
–
Kontakta oss för mer information. Läs mer om totalentreprenad.
Prisgrupp 1 – Priserna varierar beroende på var i landet du bygger ditt hus. Ändra region
Byggsatspris: –
Priset avser standardutförande med vår höga grundstandard på totalentreprenad och inkluderar grundläggning med platta på mark och vattenburen golvvärme samt markarbeten i standardomfattning. Vi förbehåller oss rätten för lokala prisavvikelser med hänsyn till transport- och tillgänglighetssvårigheter, så som vid bl a bro-, tunnel- eller färjeanslutna ögrupper.
Energiförbrukning — kWh/m² per år
- Malmö
- 32
- Göteborg
- 35
- Stockholm
- 40
- Umeå
- 58
Energiberäkningarna är utförda med temperatur 21°C i bostadsutrymmen.
Förutsättningar:
- Värmepump: NIBE S735
- Fönster: Elit Xceed
- Luftläckage: max 0,6 l/s m2
- Marginal enligt TMF: 8.11
Redovisade värden är baserade på standardhus och kan variera beroende på val av byggort, inplacering, ändring av medeltemperatur och/eller ändring i konstruktion på grund av tillval (ryggåstak, fönsterändringar mm.)
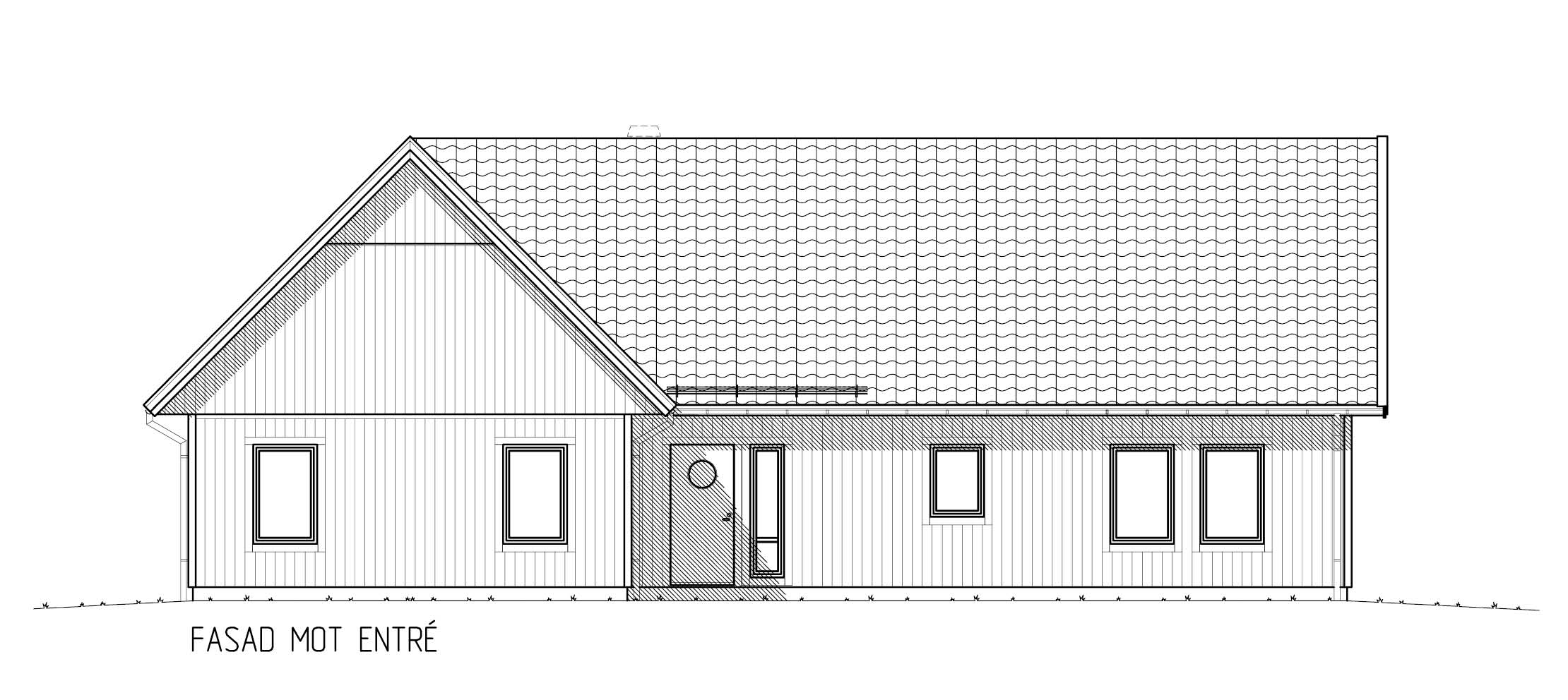
Fasadritningar i standardutförande
Roterbar 3D-modell

Intresserad av LB Optimal 173?
Varmt välkommen att kontakta oss om du har några frågor eller önskar få en kostnadsfri offert på ditt drömhus. Fyll i kontaktformuläret nedan:
Kontaktpersoner

Gå på visning
Är du intresserad av att se några av våra hus i verkligheten. Besök någon av våra visningar för att få en känsla för husen vi levererar. Se alla visningar



















