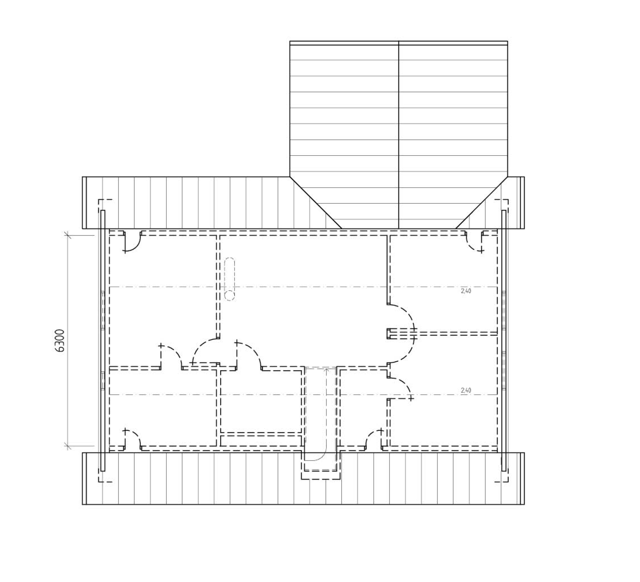
LB Optimal 171
- Boarea171.5 m²
- Byggnadsarea124.2 m²
- Antal rum8
- Byggnadshöjd3.6 m
- Taklutning45°
- Nockhöjd7.8 m
- ArkitektIngemar Medlöw - IMw-design AB
LB Optimal 171
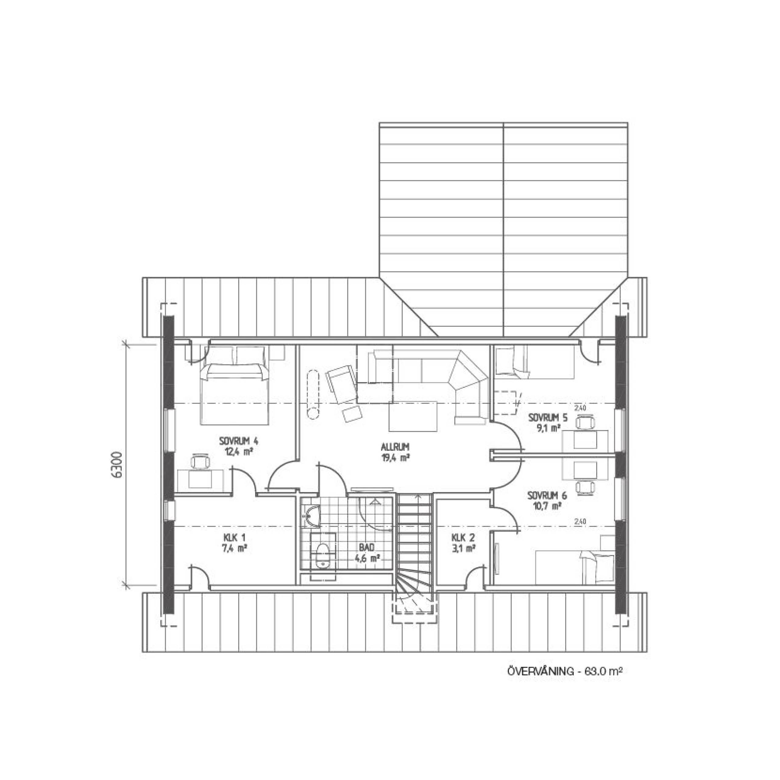
Stort och ljust i vinkel
Här har vi ett rejält vinkelhus med rikliga förvaringsmöjligheter och fem eller sex sovrum fördelade på entréplan och ovanvåning. Redan i entrén får du en känsla av husets öppenhet, med stor hall och genomsikt till de inbjudande sociala ytorna. Den välbekanta L-formen bildar en riktigt trivsam vardagsrumshörna på entréplan och ger en härlig innergårdskänsla utvändigt med skydd från vind och insyn. Välj till ryggåstak med fönster i gavelspetsarna för ännu mer rymd också invändigt. Garanterad wow-känsla! Du kan välja att köpa huset med inredd eller oinredd övervåning. Kanske börjar du i liten skala och låter huset växa med familjen?
Inredd eller oinredd övervåning?
Valet är ditt. Våra 1,5-planshus går alla att få med både inredd och oinredd övervåning. Väljer du oinredd övervåning kan du välja till olika tillval med förberedelser. Det gör 1,5-planshusen till våra mest flexibla hus. Väljer du oinredd övervåning bygger vi ditt 1,5-planshus med helt oinredd vind, enligt samma princip som ett 1-planshus – men med större taklutning. Kanske nöjer du dig med entrevåningen, men vill ha möjlighet till ett bättre andrahandsvärde i framtiden? Då är det här alternativet perfekt.
–
*Priset avser utförande med oinredd övervåning. Huset går även att få med färdig övervåning. Kontakta din säljare för mer information.
Kontakta oss för mer information. Läs mer om totalentreprenad.
Prisgrupp 1 – Priserna varierar beroende på var i landet du bygger ditt hus. Ändra region
Byggsatspris: –
Priset avser standardutförande med vår höga grundstandard på totalentreprenad och inkluderar grundläggning med platta på mark och vattenburen golvvärme samt markarbeten i standardomfattning. Vi förbehåller oss rätten för lokala prisavvikelser med hänsyn till transport- och tillgänglighetssvårigheter, så som vid bl a bro-, tunnel- eller färjeanslutna ögrupper.
Energiförbrukning — kWh/m² per år
- Malmö
- 30
- Göteborg
- 31
- Stockholm
- 34
- Umeå
- 46
Energiberäkningarna är utförda med temperatur 21°C i bostadsutrymmen.
Förutsättningar:
- Värmepump: NIBE S735
- Fönster: Elit Xceed
- Luftläckage: max 0,6 l/s m2
- Marginal enligt TMF: 8.11
Redovisade värden är baserade på standardhus och kan variera beroende på val av byggort, inplacering, ändring av medeltemperatur och/eller ändring i konstruktion på grund av tillval (ryggåstak, fönsterändringar mm.)
Fasadritningar i standardutförande
Roterbar 3D-modell

Intresserad av LB Optimal 171?
Varmt välkommen att kontakta oss om du har några frågor eller önskar få en kostnadsfri offert på ditt drömhus. Fyll i kontaktformuläret nedan:
Kontaktpersoner

Gå på visning
Är du intresserad av att se några av våra hus i verkligheten. Besök någon av våra visningar för att få en känsla för husen vi levererar. Se alla visningar

























