LB Optimal 153
- Boarea152.6 m²
- Byggnadsarea102.5 m²
- Antal rum6
- Byggnadshöjd3.6 m
- Taklutning45°
- Nockhöjd7.8 m
- ArkitektFilip Behr
LB Optimal 153
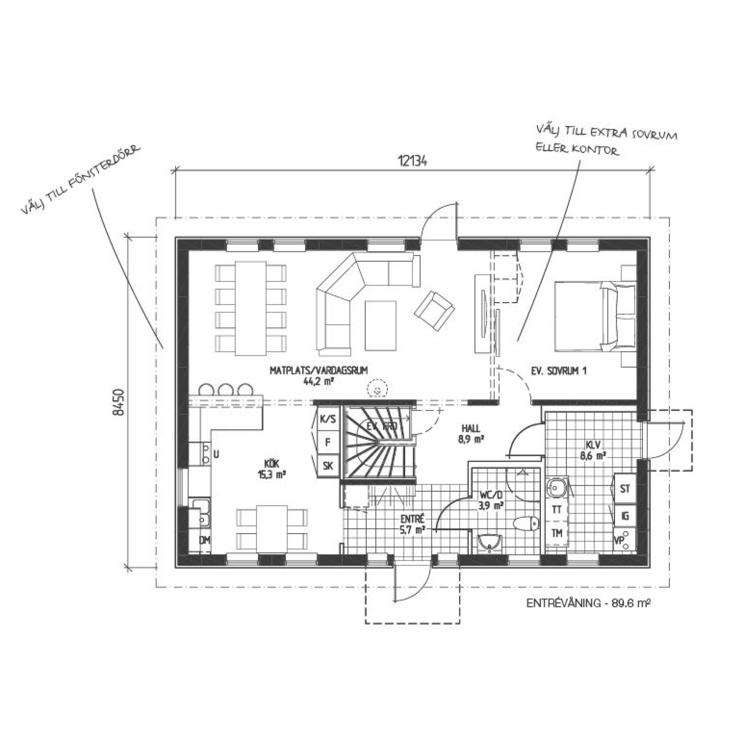
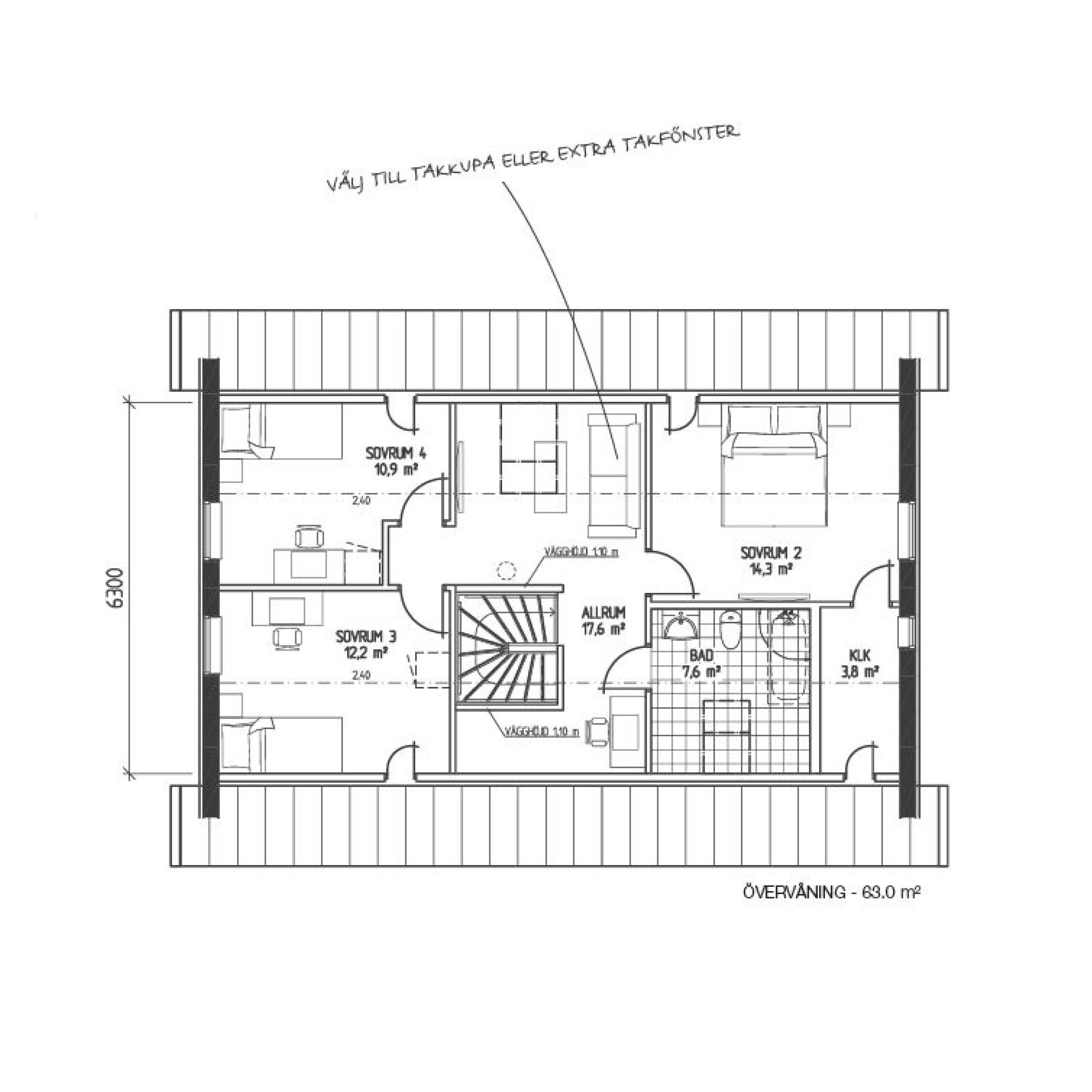
Klassiker med öppen planlösning
I det här huset finns gott om plats för familjen att växa och förändras – du kan välja upp till fyra sovrum, lägga till extra förvaringsutrymme under trappan, och har från start praktisk klädvård med egen entré som ger en smidig ingång från kortsidan. Entréplan präglas av öppna och ljusa sällskapsytor; köket övergår i matplats som övergår i vardagsrum. Den trevliga köksön bjuder lätt in till umgänge medan matlagningen pågår. Med fönsterdörr i köket som tillval är steget ut i trädgården alltid nära – kanske är det där ni skördar egenodlad basilika om sommaren? Övervåningen med sovavdelning ger ett ombonat intryck med snedtak och gemensamt allrum i anslutning till trappan.
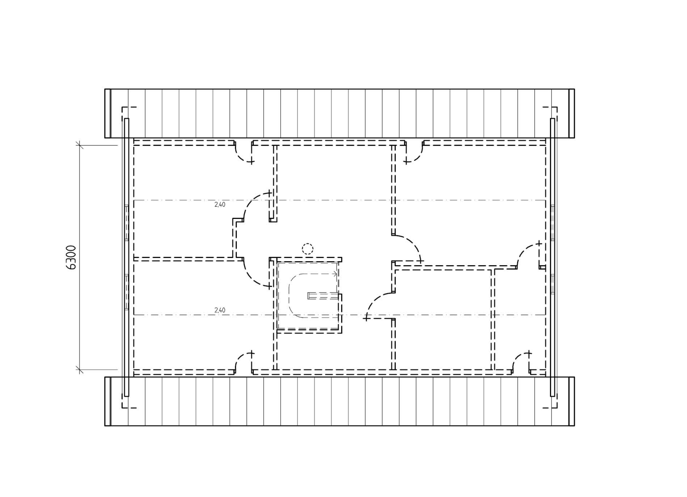
Inredd eller oinredd övervåning?
Valet är ditt. Våra 1,5-planshus går alla att få med både inredd och oinredd övervåning. Väljer du oinredd övervåning kan du välja till olika tillval med förberedelser. Det gör 1,5-planshusen till våra mest flexibla hus. Väljer du oinredd övervåning bygger vi ditt 1,5-planshus med helt oinredd vind, enligt samma princip som ett 1-planshus – men med större taklutning. Kanske nöjer du dig med entrevåningen, men vill ha möjlighet till ett bättre andrahandsvärde i framtiden? Då är det här alternativet perfekt.
Virtuell visning av isolerad övervåning – se här
Virtuell visning av oinredd övervåning – se här
Se även vårt visningshus i Stockholm som är ett LB Optimal 153
Kontakta oss för mer information. Läs mer om totalentreprenad.
Prisgrupp 1 – Priserna varierar beroende på var i landet du bygger ditt hus. Ändra region
Byggsatspris: –
Priset avser standardutförande med vår höga grundstandard på totalentreprenad och inkluderar grundläggning med platta på mark och vattenburen golvvärme samt markarbeten i standardomfattning. Vi förbehåller oss rätten för lokala prisavvikelser med hänsyn till transport- och tillgänglighetssvårigheter, så som vid bl a bro-, tunnel- eller färjeanslutna ögrupper.
Energiförbrukning — kWh/m² per år
- Malmö
- 30
- Göteborg
- 32
- Stockholm
- 35
- Umeå
- 46
Energiberäkningarna är utförda med temperatur 21°C i bostadsutrymmen.
Förutsättningar:
- Värmepump: NIBE S735
- Fönster: Elit Xceed
- Luftläckage: max 0,6 l/s m2
- Marginal enligt TMF: 8.11
Redovisade värden är baserade på standardhus och kan variera beroende på val av byggort, inplacering, ändring av medeltemperatur och/eller ändring i konstruktion på grund av tillval (ryggåstak, fönsterändringar mm.)
Fasadritningar i standardutförande
Roterbar 3D-modell

Intresserad av LB Optimal 153?
Varmt välkommen att kontakta oss om du har några frågor eller önskar få en kostnadsfri offert på ditt drömhus. Fyll i kontaktformuläret nedan:
Kontaktpersoner

Gå på visning
Är du intresserad av att se några av våra hus i verkligheten. Besök någon av våra visningar för att få en känsla för husen vi levererar. Se alla visningar





















