LB Optimal 138
- Boarea138.7 m²
- Byggnadsarea95.3 m²
- Antal rum6
- Byggnadshöjd3.6 m
- Taklutning45°
- Nockhöjd7.6 m
- ArkitektFilip Behr
LB Optimal 138
Stora möjligheter på få kvadratmeter
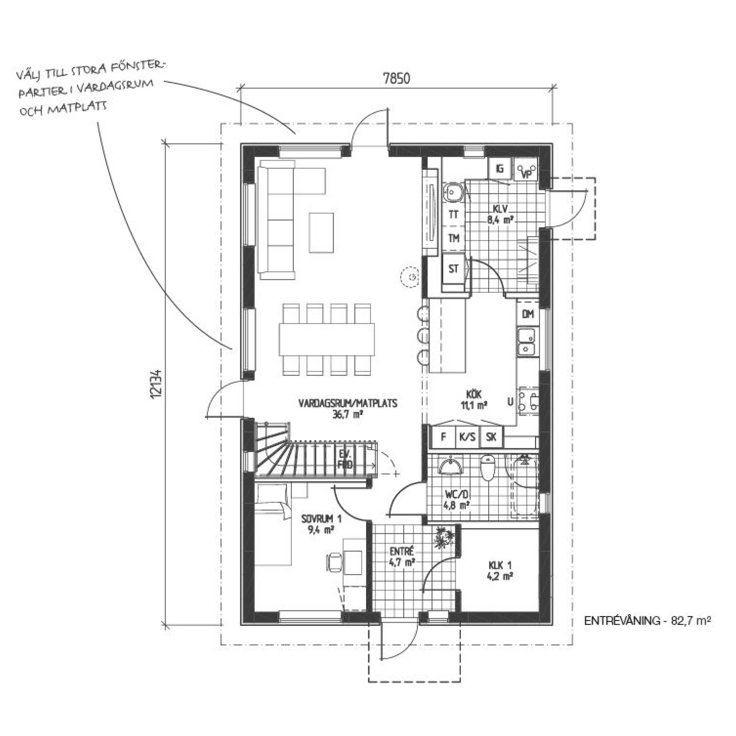
Med entrén placerad på husets gavel passar LB Optimal 138 fint också på smalare tomter. Två separata fönsterdörrar i vardagsrummet gör det dessutom möjligt att anpassa läget för uteplatsen efter tomtens form och förutsättningar – var är kvällssolen?
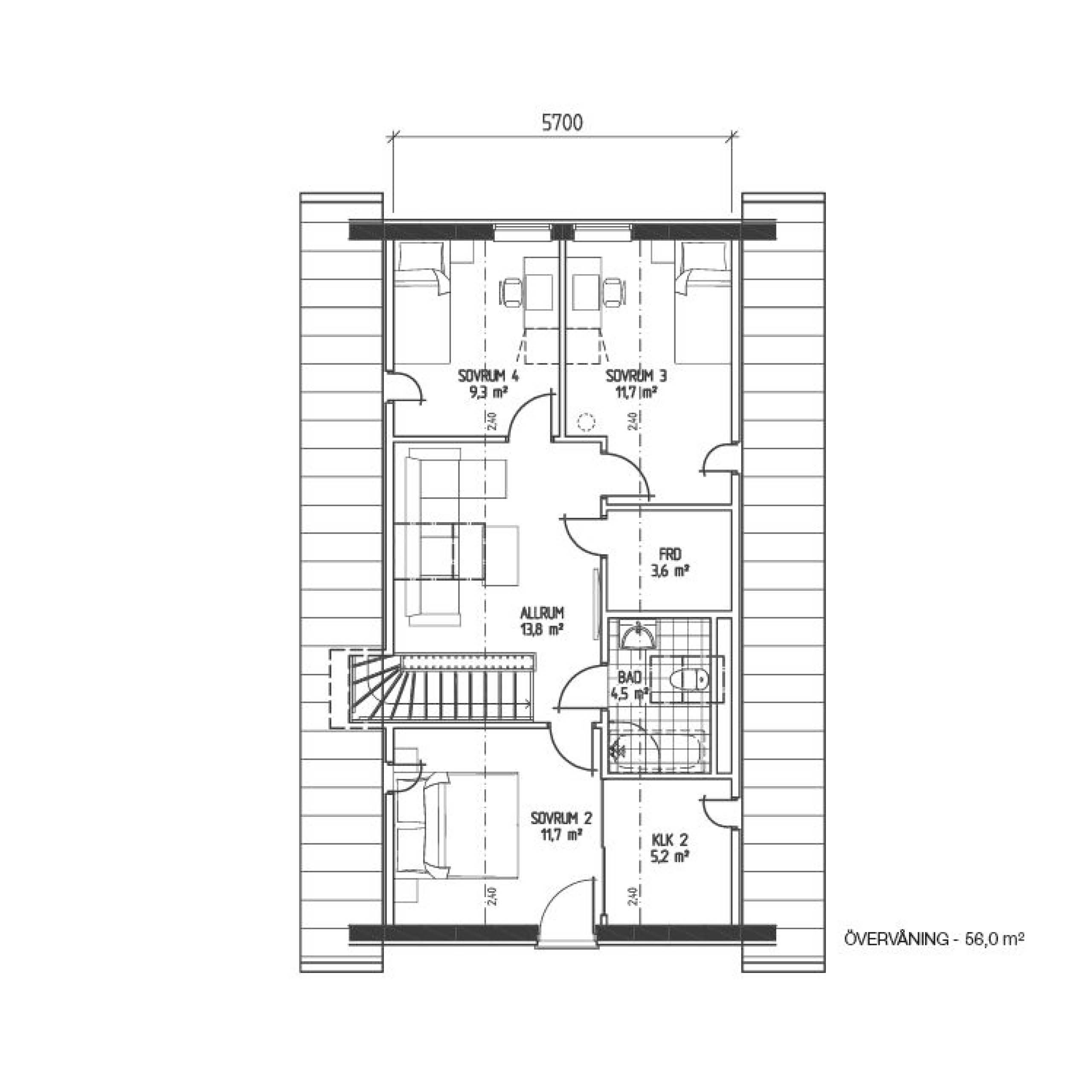
Huset har en modern fönstersättning och får ljus och rymd genom en delvis öppen planlösning mellan kök och vardagsrum. Det är ett praktiskt hus med fyra sovrum på optimerad yta, stor klädvårdsdel, kapprum vid entrén och gott om förvaringsmöjligheter. Här får du också vardagslyxiga detaljer som fransk balkong i master bedroom och inbyggd nisch för din tv-möbel i vardagsrummet.
Obs LB Optimal 138 finns endast med inredd ovanvåning.
–
Kontakta oss för mer information. Läs mer om totalentreprenad.
Prisgrupp 1 – Priserna varierar beroende på var i landet du bygger ditt hus. Ändra region
Byggsatspris: –
Priset avser standardutförande med vår höga grundstandard på totalentreprenad och inkluderar grundläggning med platta på mark och vattenburen golvvärme samt markarbeten i standardomfattning. Vi förbehåller oss rätten för lokala prisavvikelser med hänsyn till transport- och tillgänglighetssvårigheter, så som vid bl a bro-, tunnel- eller färjeanslutna ögrupper.
Energiförbrukning — kWh/m² per år
- Malmö
- 31
- Göteborg
- 33
- Stockholm
- 36
- Umeå
- 47
Energiberäkningarna är utförda med temperatur 21°C i bostadsutrymmen.
Förutsättningar:
- Värmepump: NIBE S735
- Fönster: Elit Xceed
- Luftläckage: max 0,6 l/s m2
- Marginal enligt TMF: 8.11
Redovisade värden är baserade på standardhus och kan variera beroende på val av byggort, inplacering, ändring av medeltemperatur och/eller ändring i konstruktion på grund av tillval (ryggåstak, fönsterändringar mm.)
Fasadritningar i standardutförande
Roterbar 3D-modell

Intresserad av LB Optimal 138?
Varmt välkommen att kontakta oss om du har några frågor eller önskar få en kostnadsfri offert på ditt drömhus. Fyll i kontaktformuläret nedan:
Kontaktpersoner

Gå på visning
Är du intresserad av att se några av våra hus i verkligheten. Besök någon av våra visningar för att få en känsla för husen vi levererar. Se alla visningar




























