LB Optimal 146
- Boarea146 m²
- Byggnadsarea164 m²
- Antal rum6
- Byggnadshöjd3.4 m
- Taklutning27 och 34°
- Nockhöjd5.8 m
- ArkitektFilip Behr
LB Optimal 146
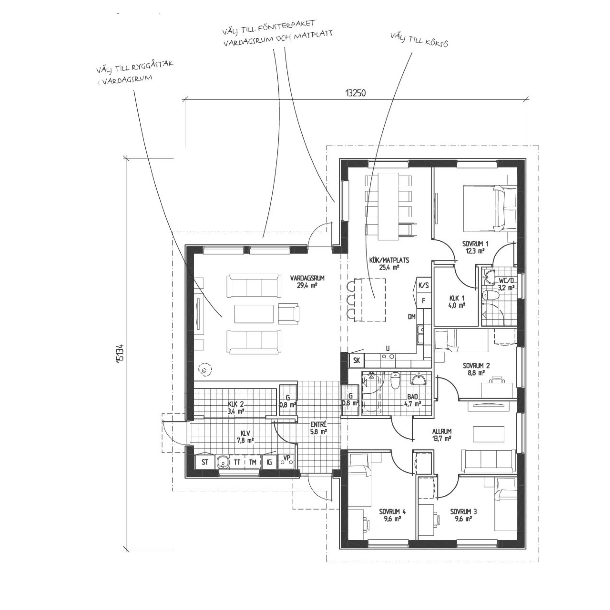
Smart och öppet i vinkel
Det här vinkelhuset passar de flesta tomter – och familjekonstellationer. Här är det stora sovrummet avskilt i ena änden av huset, med egen klädkammare och badrum. I andra änden finns ytterligare tre sovrum och gemensamt allrum för lekstunder och myskvällar. Köket är husets centrum, och ansluter till det rymliga vardagsrummet med matplats i vinkel och altandörr som ger en naturlig koppling till baksidan. Tillvalda fönster från golv till tak, eller pampigt ryggåstak i vardagsrum, ger extra öppenhet. Den egna tvättstugan har en rejält tilltagen klädkammare med skjutdörrspari. Välj till kopplat garage med ingång direkt till tvättstugan – särskilt tacksamt under regniga dagar.
–
Kontakta oss för mer information. Läs mer om totalentreprenad.
Prisgrupp 1 – Priserna varierar beroende på var i landet du bygger ditt hus. Ändra region
Byggsatspris: –
Priset avser standardutförande med vår höga grundstandard på totalentreprenad och inkluderar grundläggning med platta på mark och vattenburen golvvärme samt markarbeten i standardomfattning. Vi förbehåller oss rätten för lokala prisavvikelser med hänsyn till transport- och tillgänglighetssvårigheter, så som vid bl a bro-, tunnel- eller färjeanslutna ögrupper.
Energiförbrukning — kWh/m² per år
- Malmö
- 31
- Göteborg
- 33
- Stockholm
- 37
- Umeå
- 53
Energiberäkningarna är utförda med temperatur 21°C i bostadsutrymmen.
Förutsättningar:
- Värmepump: NIBE S735
- Fönster: Elit Xceed
- Luftläckage: max 0,6 l/s m2
- Marginal enligt TMF: 8.11
Redovisade värden är baserade på standardhus och kan variera beroende på val av byggort, inplacering, ändring av medeltemperatur och/eller ändring i konstruktion på grund av tillval (ryggåstak, fönsterändringar mm.)
Fasadritningar i standardutförande
Roterbar 3D-modell

Intresserad av LB Optimal 146?
Varmt välkommen att kontakta oss om du har några frågor eller önskar få en kostnadsfri offert på ditt drömhus. Fyll i kontaktformuläret nedan:
Kontaktpersoner

Gå på visning
Är du intresserad av att se några av våra hus i verkligheten. Besök någon av våra visningar för att få en känsla för husen vi levererar. Se alla visningar











