Vaxholm
LB Optimal 171
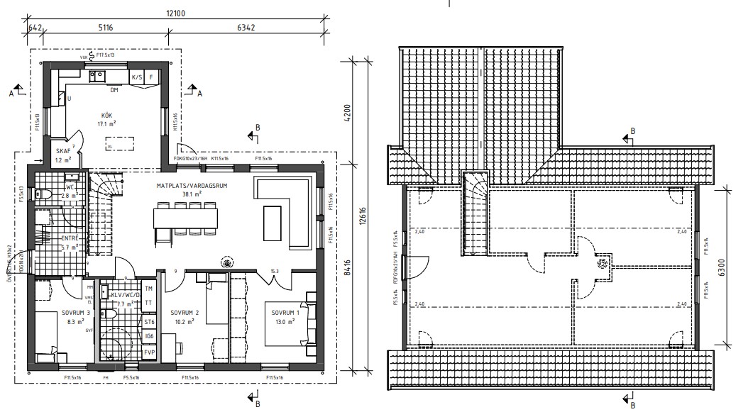
Välkommen till öppen visning söndagen den 12/4 kl 14.00-15.00 av ett kundanpassat LB Optimal 171 med oinredd ovanvåning på Överbyslingan 44 i Vaxholm (Resarö).
Huset är sålt i nästan nyckelfärdigt utförande och har kundanpassningar, 2,7 m takhöjd markplan och förhöjt väggliv övre plan.
Nästan nyckelfärdigt utförande innebär att huset levereras med färdigställda våtutrymmen från golv till tak, klinkergolv i hall och kakel över diskbänk. Och att kunden utför eget arbete som att att lägga golv, spackla, måla tak och måla/tapetsera väggar samt montera diverse lister, socklar och innerdörrar.
Huset är nybyggt, kundägt, ej till salu och ska ses som inspiration.
Överbyslingan 44Vaxholm, Resarö
- Visningstid 12/4 · 14:00 - 15:00
- KommunVaxholm
- ÖvrigtÖppen visning

LB Optimal 171
Läs mer om husmodellen
KAMPANJ - Carport på köpet!
När du bygger med LB-Hus får du mest hus för pengarna. Just nu har vi dessutom en kampanj där du får en carport på köpet! Ett smart erbjudande som ger mervärde från start.
Kontaktpersoner







