Älmhult
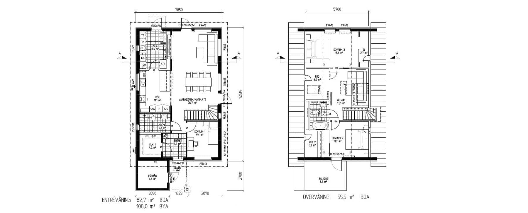
LB Optimal 138
Välkommen till öppen visning lördagen den 20/8 kl 13.00-14.00 av ett kundanpassat LB Optimal 138 på Södra Krongatan 10 i Älmhult.
För mer info Paul Bondesson 0708 118 113, paul.bondesson@lbhus.se
Knutsgatan 32B Älmhult
- Visningstid 20/8 · 13:00 - 14:00
- KommunÄlmhult
- ÖvrigtÖppen visning

LB Optimal 138
Läs mer om husmodellen
KAMPANJ - Carport på köpet!
När du bygger med LB-Hus får du mest hus för pengarna. Just nu har vi dessutom en kampanj där du får en carport på köpet! Ett smart erbjudande som ger mervärde från start.
Kontaktpersoner









